Top of the page

Artisans' house

At Lithuanian Monuments

Intro. Zypliai manor is gradually being rehabilitated following the restoration of Artisans' house. Restoration project is the first step towards the reuse of another component of Zypliai manor.

site

About the manor. Zypliai manor consists of nine buildings. Its representative zone has a palace, two houses for servants and a kitchen. The manor also contains a backyard/residential zone with outbuildings and the artisans' house. The complex is surrounded by a park with water features which gradually becomes a natural forest and a garden.
Zypliai manor is currently one of the most visited objects in Šakiai district. Many of the manor buildings are already restored and reused. There are presentations, conferences, celebrations, theatre performances happening there. Zypliai manor gallery was founded in the stable, a ceramic workshop in the barn and the museum of Zanavykai in the carriage house. The Artisans' house is expected to be a part of this culture hub by extending the museum of Zanavykai and hosting educational activities.

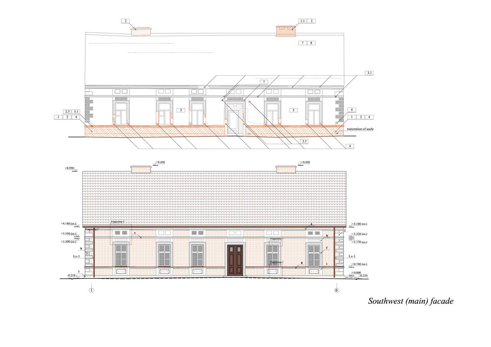
main facade view
© Audronė Šolienė
south facade
floor plans
east facade

Click here to see the pictures of the restoration process.

My contribution. Working in collaboration with the project architect Audronė Šolienė, I analyzed the present state of the Artisans' house and proposed its restoration methods and contributed to the preparation of construction documents.
I examined the facades - their condition, decoration (researched the proportions of the cornice, window casing, cordon, bulkheads, ashlar corners), former plan structure of the building, computed the amount of resources needed for the restoration work.

detailed drawings

arrow_drop_up