Top of the page

Maple Leaves

At Vilnius Gediminas Technical University

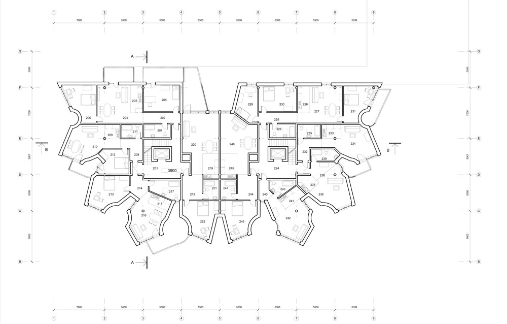
Maple leaves is a set of four multistoried dwellings for an empty block in Bajorai neighbourhood in Vilnius. The shape of the building was inspired by its environment: box-shaped dwellings and a forest surrounding the block on different sides.

model of the site

concept scheme

sketch

site plan

residential floor plan

view from the front of the building

view from the back of the building

model of the building

arrow_drop_up