Top of the page

House on the slope

Freelance with V. Olišauskienė's design studio

Intro. A house on a slope near a forest is designed for a family who enjoys Nordic lifestyle: being close to nature and spending time in a sauna.

The key element of the design is a terrace enclosed by the house on one side and the forest on the other side. It reveals the views to the valley below. The terrace is accompanied by a path leading to the forest.

The common area of the house and children rooms intentionally have the strongest relations to the surroundings. The living room with the kitchen has a view towards the forest, while the children rooms have a view towards the distant areas. The house has a sauna area on the ground floor with an exit to the yard.

My contribution. I developed the design based on functional requirements and clients criteria, prepared graphic documentation of the project complying planning guidelines, code requirements and sustainable design principles.

Under construction.

exterior view of the house

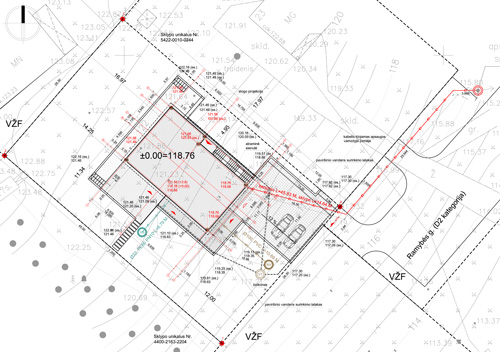
site
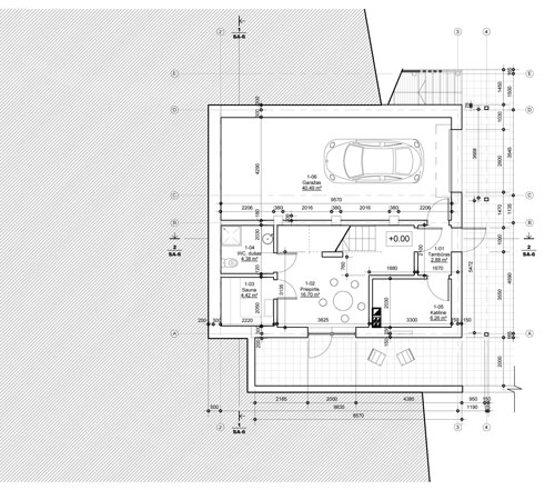
ground floor plan
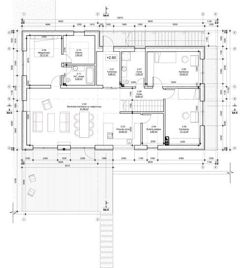
first floor plan
facades
facades
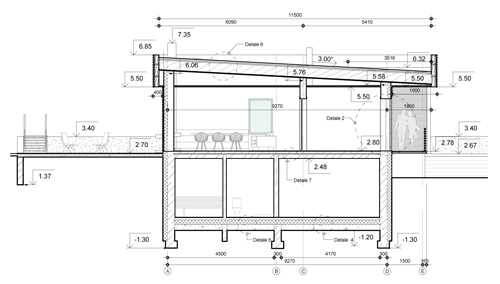
section

interior view

exterior view of the house

arrow_drop_up